Топка ПТЛ-РПК-2-1,8/2,135 в Магасе

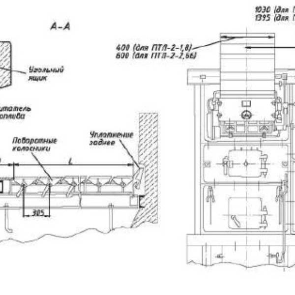
Топка ПТЛ-РПК-2-1800/2135 с ленточными питателями топлива и статичной решеткой с поворотными колосниками. Работает в паре с водогрейными котлами для сжигания каменных и бурых углей.

Цена:
Цена не указана
Количество:
Отправляя свои личные данные через формы на сайте, Вы даёте своё согласие на обработку персональных данных согласно Федеральному закону №152-ФЗ «О персональных данных» от 27.07.2006 г. в редакции от 01.07.2017.

Устройство и принцип работы топка ПТЛ-РПК-2-1800/2135

Топки ПТЛ-РПК-2-1800/2135 с ленточным питателем топлива предназначены для непрерывной подачи топлива на колосниковую решетку паровых и водогрейных котлов. Состоят из угольного бункера с заслонкой для дозирования топлива, и пластинчатого транспортера. Скорость задается импульсивным вариатором, и влияет на производительность. На силу заброса топлива влияет частота вращения ротора, который работает от привода. Привод состоит из электродвигателя, импульсного вариатора, ременных и цепных передач.

Условное обозначение

Топка ПТЛ-РПК-2-1800/2135, где:

  • П – питатель;
  • Т – топлива;
  • Л – ленточный;
  • Р – решетка;
  • П – с поворотными;
  • К – колосниками.
  • 2 — количество питателей;
  • 1800 — ширина колосниковой решетки, мм;
  • 2135 — длина колосниковой решетки, мм.

Монтаж топки ПТЛ-РПК-2-1800/2135

Топка ПТЛ-РПК-2-1800/2135 поставляется в полной комплектации, в которую входят: решетка колосниковая, фронт, составные и монтажные детали топки, питатель топлива ПТЛ. Устанавливается на предварительно выровненную поверхность без необходимости в строительстве специального фундамента. Крепится к поверхности при помощи анкерных болтов.

Монтаж котельного оборудования производится с соблюдением СНиП 11-35-76 «Котельные установки» и «Правил устройства и безопасной эксплуатации паровых и водогрейных котлов».

Характеристики
Серия: ПТЛ-РПК
Вид топлива: Бурый угольКаменный угольАнтрацит
Диапазон изменения нагрузки: 25-100 %
Коэффициент избытка воздуха за топкой, не более: 1,4-1,7
Потери тепла от химического недожега, не более: 2 %
Потери тепла от механического недожега: 13,5 %
Влажность топлива, не более: 40 %
Зольность топлива, не более: 35 %
Содержание мелочи (0-6 мм), не более: 60 %
Максимальный размер куска: 40 мм
Ширина колосниковой решетки: 1800 мм
Длина колосниковой решетки: 2135 мм
Активная площадь колосниковой решетки: 3,84 м²
Ширина секций: 900 мм
Ширина забрасывателя: 400 мм
Габаритные размеры: 3700х2060х2600 мм
Масса: 3270 кг
Вид топки: Полумеханическая
Схемы

Города поставок

Москва
Пн-Пт 09:00 - 18:00
Сб 09:00 - 17:00
Карачаево-Черкесская Республика
Пн-Пт 09:00 - 18:00
Сб 09:00 - 17:00
Екатеринбург
Пн-Пт 09:00 - 18:00
Сб 09:00 - 17:00

Совершите покупку за 4 шага

Шаг 1
Выберите товары из каталога
Шаг 2
Поместите нужные вам товары в корзины
Шаг 3
Укажите свои контактные данные в форме обратной связи
Шаг 5
Ожидайте звонка от менеджера для оформления покупки

Похожие товары

Топки ТШПМ
Топки ТШПМ
Цена от 0 руб.
Топки ТЧЗМ
Топки ТЧЗМ
Цена от 0 руб.
Топки ТЛПХ
Топки ТЛПХ
Цена от 0 руб.
Вы смотрели эти товары
Отопительные котлы
Водогрейный котел КВм-2.2 на ДВО используется для нагрева жидкости до 115 °С, применяемой в системах отопления и горячего водоснабжения. Отопительные приборы КВм-2.2 способны прогревать помещения площадью до 22000 м². Твердотопливный котел оснащается механической топкой на древесных отходах со шнековой подачей. Дополнительно к агрегату приобретаются сопутствующие товары: вентиляторы, дымососы, циклоны, дымовые трубы, бункер топки и другое котельное оборудование.
Котельные установки
Модульная котельная МКУ-9.0 — система водогрейных котельных агрегатов, оснащенная всем необходимым оборудованием, и собранная в компактном помещении из сварного металлического материала. Используется для производства тепловой энергии на нужды отопления (нагрев жидкости до 115 °С), и воды для горячего водоснабжения.
Котельные установки
Модульная котельная МКУ-4.5 — система водогрейных котельных агрегатов, оснащенная всем необходимым оборудованием, и собранная в компактном помещении из сварного металлического материала. Используется для производства тепловой энергии на нужды отопления (нагрев жидкости до 115 °С), и воды для горячего водоснабжения.